ZURÜCK ZU



RETURN TO



REGRESAR A


 QUICK-

 BUTTON

 

STANDARD                  DAZU DETAILS


STANDARD                     WITH DETAILS


STANDARD               CON DETALLES

Von meinem Büro werden u.a. "Standard"-Einfamilienhäuser entworfen. Sie können nach Wunsch gestaltet und ausgestattet werden, sowohl eingeschossig (Bungalows) als auch mit ausgebautem bzw. ausbaufähigem Dachgeschoss.

 

Beispiel-Fotos und Grundrisse

 

O AVANTGARDE-MODELL

 


My office designs "Standard" homes. They can be styled according to the desires of the client, as well as one plant  or two plant house.

 

 

 

Examples for standard styled homes, fotos and plants

 

O AVANTGARDE MODEL

 


Mi oficina diseña casas "Standard". estas pueden ser diseñadas de acuerdo con las necesidades del cliente, de uno o dos pisos.

 

 

Ejemplos para casas diseñadas en estilo standard, fotos y plantas

 

O MODELO AVANTGARDE

 

TYPENHÄUSER

WEITERE GRUNDRISSE

PRE DESIGNED HOMES 

MORE PLANTS

CASAS TIPICAS

PLANTAS VARIAS

 

KOSTEN SIEHE BLATT HAUSKOSTEN   

 

STANDARD

 

   -  HAUSGRUPPEN

 

 

 

 

 

 

 

FOTOS

 

 

EINZELNE HÄUSER        

INDIVIDUALISIERTE HÄUSER

 

 

 

 

 

 

 

 

 

 

 

 

 

 

 

 

 

 

 

 

 

 

 

 

 

 

 

 

 

 

 

 

 

 

 

 

 

 

SENIOR COMPACT

95 M2

 

 

 

 

 

 

 

 

 

 

2 VARIANTEN

ZUM

GLEICHEN

GRUNDRISS

 

 

 

 

 

 

 

 

NEUES HAUS

DER REIHE

KFW-60

 

 

 

 

 

 

 

 

 

 

   

 

        

 

           

 

 

 

 

 

 

  TYPENHÄUSER - BUNGALOWS

 

 

 

       

 

           

 

             

 

         

 

                        

 

 

 

  TYPENHÄUSER - 2-GESCHOSSIG

 

 

 

        

 

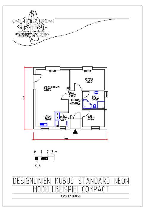
PLÄNE

 

 

 

 

 85 M2                                                                      120 M2

 

 

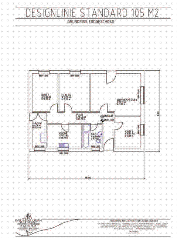
 105 M2                                                 125 M2

  

 

 120 M2 - 2G

 

 

 

 

 195 M2 - 2 WE

 

 

115 M2 - 2G AVANTGARDE 

 

  

 

  

 

 VIELE WEITERE PLÄNE UNTER KOMFORTHÄUSERN SENIORENGEEIGNET UND BEI DEN ANDEREN HAUSMODELLEN

 SIEHE  I QUICKBUTTON I  OBEN UND AUF ANFRAGE UNTER KONTAKT

 

   

NACH OBEN - TOP - INICIO DE PAGINA